ein Lebensgefühl genießen

Das eigene Haus bauen, es gestalten und darin leben: für die meisten von uns ein Lebensziel. Wir stellen Ihnen hier weitere Hausentwürfe vor. Sie haben weitere Ideen, Anregungen? Sehr gerne. Wir hören zu, planen und realisieren und geben Ihrem Zuhause ein Gesicht.

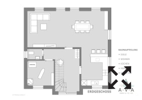
Einfamilienhaus 03


Zuhause einfach genießen. Flexibilität für Ihre Wünsche.

schlüsselfertig ab 000.900 € *

Raumaufteilung

• 4 – 5 Zimmer

• Optional: ein zweites Bad 

  & Home Office

• Diele

• Gäste-WC

• Flur 

• Bad

• Hauswirtschaftsraum

Erdgeschoss

Profil

• großer Wohn-Essbereich

• Küche als abgeschlossene Variante möglich

• Optional mit 2 Bädern / Gästezimmer / Home Office

• geräumige Schlafräume

• großzügiges Badezimmer

• optional Klinker-/Wechselfassade zur architektonischen Gestaltung 

• jedes AVA-Haus wird individuell nach Ihren Wünschen geplant und gestaltet

Dachgeschoss

Beschreibung

Zuhause einfach genießen. Flexibilität für Ihre Wünsche.

Der Hauseingang eröffnet Ihnen den Zutritt in die großzügige Diele. Von dort haben Sie Zugang zu allen Räumen im Erdgeschoss. Bodentiefe Fenster durchfluten den Wohnbereich mit viel Licht. Hell, gemütlich und weitläufig – genügend Raum zum Entfalten im ganzen Haus.  An den großen Wohnbereich schließt die Küche an – ganz nach Ihrem Geschmack – offen oder getrennt vom Wohnraum. Ein Hauswirtschaftsraum und ein Gäste-WC vervollständigen das Raumangebot im Erdgeschoss.


Im Dachgeschoss können Sie drei Räume nach Lust und Laune gestalten, die Ihnen viel Platz für Schlafräume, Kinder- oder Gästezimmer bieten. Das großzügige Bad ist ein echter Muntermacher.

Variantenvielfalt: Sie wünschen sich ein Gästezimmer, ein zusätzliches Bad oder ein Home Office? Vielleicht eine besonders große Küche? Kein Problem. Dieses Haus ist besonders flexibel. Schauen Sie sich doch gerne einmal die Grundrissvarianten an. 



Jedes AVA-Haus wird individuell nach Ihren Wünschen geplant und gestaltet – bitte vereinbaren Sie hierzu einen Gesprächstermin. Änderungen vorbehalten.

Varianten Erdgeschoss

Varianten Dachgeschoss

Einfamilienhaus 04


Den Sonnenschein einfangen. Ein Grundriss, viele Varianten.

schlüsselfertig ab 000.900 € *

Raumaufteilung

• 4 – 5 Zimmer

• Optional: ein zweites Bad 

  & Home Office

• Diele

• Gäste-WC

• Flur 

• Bad

• Hauswirtschaftsraum

Erdgeschoss

Profil

• Moderne Satteldacharchitektur

• perfekte Raumausnutzung

• bodentiefe Fenster für noch mehr Tageslicht

• ein Grundriss, viele Varianten

• optional Klinker-/Wechselfassade zur architektonischen Gestaltung 

• jedes AVA-Haus wird individuell nach Ihren Wünschen geplant und gestaltet

Dachgeschoss

Beschreibung

Den Sonnenschein einfangen. Ein Grundriss, viele Varianten.

Ein dritter Giebel für lebendige Optik, mehr Raumhöhe und ein helles Ambiente. Das Einfamilienhaus 4 passt sich all Ihren Wünschen an, ein echtes Multitalent. 

Ob offene oder geschlossene Küche, ein Gästezimmer, ein zweites Badezimmer oder ein Home Office im Erdgeschoss – ganz nach Ihren persönlichen Vorlieben lässt sich der Grundriss gestalten.


Bodentiefe Fenster lassen frische Luft ins Haus und durchfluten die Räume mit viel Licht für ein Haus voller Leben.


Für welche Variante Sie sich auch entscheiden: mit diesem schicken, modernen Haus sind Ihnen viel Raum für eigene Bedürfnisse und gemeinsame Aktivitäten sicher.




Jedes AVA-Haus wird individuell nach Ihren Wünschen geplant und gestaltet – bitte vereinbaren Sie hierzu einen Gesprächstermin. Änderungen vorbehalten.

Varianten Erdgeschoss

Varianten Dachgeschoss

Einfamilienhaus 05


Hingucker mit Friesengiebel – Norddeutsch, aber nicht unterkühlt.

schlüsselfertig ab 000.900 € *

Raumaufteilung

• 4 – 5 Zimmer

• offene oder geschlossene 

  Küche

• Diele

• Gäste-WC

• Galerie

• Bad

• Hauswirtschaftsraum

Erdgeschoss

Profil

• Friesengiebel

• Eingangsbereich mit breiter Haustür

• Geräumiges, L-förmiges Ensemble aus Kochen und Wohnbereich

• Giebelfenster im Galerie-Bereich

• Modernes Bad 

• jedes AVA-Haus wird individuell nach Ihren Wünschen geplant und gestaltet

Dachgeschoss

Beschreibung

Hingucker mit Friesengiebel – Norddeutsch, aber nicht unterkühlt.

Der unverkennbare Eingangsgiebel gibt diesem Haus das Besondere und begrüßt Sie mit nordischem Charme. Außen wie innen sympathisch und behaglich. Die einladende Diele führt Sie geradewegs in den geräumigen Wohnbereich. Von hier genießen Sie den Blick in den Garten. Die Wege zwischen der großen Küche und dem Esstisch sind kurz, trotzdem bleibt das Kochgeschehen von der Sitzgruppe im Wohnbereich fast unsichtbar. Nicht nur der Wohn- und Kochbereich, auch die Diele und der Hauswirtschaftsraum überzeugen mit ihrer Größe und werden allen Ansprüchen gerecht. 


Das Dachgeschoss begeistert mit Behaglichkeit und Flexibilität. Die Galerie mit Giebelfenster führt zu drei Räumen, die individuell als Schlaf-, Kinder-, Gästezimmer oder Arbeitszimmer dienen können. Das familienfreundliche Badezimmer bietet einen perfekten Start in den Tag. In diesem gemütlichen Einfamilienhaus können Sie jeden Tag nordisches Lebensgefühl genießen.




Jedes AVA-Haus wird individuell nach Ihren Wünschen geplant und gestaltet – bitte vereinbaren Sie hierzu einen Gesprächstermin. Änderungen vorbehalten.

Stadthaus 02


Ein Stadthaus mit stattlichem Auftritt.

schlüsselfertig ab 000.900 € *

Raumaufteilung

• 4 Zimmer

• Offene Küche

• Diele

• Gäste-WC

• Hauswirtschaftsraum

• Galerie

• Bad

Erdgeschoss

Profil

• Kubische Form im Stadthausdesign

• Fließende Übergänge zwischen Wohn-, Ess- und Küchenbereich

• Zwei raumhohe Geschosse für noch mehr individuelle Gestaltung

• Zeltdach

• optional Klinker-/ Wechselfassade zur architektonischen Gestaltung

• jedes AVA-Haus wird individuell nach Ihren Wünschen geplant und gestaltet

Obergeschoss

Beschreibung

Ein Stadthaus mit stattlichem Auftritt.

Die Form wie ein Kubus. Das Stadthaus 2 zeigt mit seinen klaren Linien eine moderne Formensprache. Im Inneren lässt der offene und zeitgemäße Grundriss viel Raum für die individuelle Gestaltung. Fließende Übergänge zwischen Wohn-, Ess- und Küchenbereich bieten Ihnen Platz zum gemeinsamen Entspannen und Genießen. 


Im Obergeschoss liegt die Galerie, die mit entsprechendem Platz für einen Schreibtisch oder einen Lesesessel  nicht nur dem Zugang zu den weiteren Räumen auf dieser Wohnebene dient. Ein Schlafzimmer sowie zwei weitere Räume, die sich perfekt als Kinder-, Gäste- oder Arbeitszimmer gestalten lassen, runden neben dem Bad das Raumangebot ab. 

Das Stadthaus hat nicht nur in der Stadt einen stattlichen Auftritt. 




Jedes AVA-Haus wird individuell nach Ihren Wünschen geplant und gestaltet – bitte vereinbaren Sie hierzu einen Gesprächstermin. Änderungen vorbehalten.

Stadthaus 03


Wohnkomfort und Design perfekt vereint.

schlüsselfertig ab 000.900 € *

Raumaufteilung

• 4 Zimmer

• Offene Küche

• Speisekammer

• Gäste-WC

• Flur

• Bad

• Hauswirtschaftsraum

Erdgeschoss

Profil

• Kubische Form im Stadthausdesign

• Weitläufiger Wohn-Essbereich

• Zwei raumhohe Geschosse 

• Praktische Speisekammer an der Küche angrenzend

• Komfortable T-Lösung im großzügigen Badezimmer

• optional Klinker-/ Wechselfassade zur architektonischen Gestaltung

• jedes AVA-Haus wird individuell nach Ihren Wünschen geplant und gestaltet

Obergeschoss

Beschreibung

Wohnkomfort und Design perfekt vereint.

Klare Linien für puren Wohngenuss zeichnen das Stadthaus 3 aus. Sofort ins Auge fällt der großzügige Wohn-Essbereich, der mit Luft und Licht durch die vielen Glasflächen verwöhnt wird. Der direkte Zugang zur Küche ermöglicht spielend leicht gleichzeitig die Kommunikation mit der Familie und Gästen sowie deren Bewirtung. Zusätzlich ist eine reine Speisekammer an die Küche liegend vorgesehen, in der Sie schnell alle notwendigen Zutaten zur Hand haben. Einfach praktisch. Die Erdgeschossebene bietet Ihnen außerdem neben dem geräumigen Entrée, einen Hauswirtschaftsraum und ein Gäste WC.


Im Obergeschoss liegt das großzügige Badezimmer. Badewanne, WC und Dusche sind im Bad als komfortable T-Lösung mit Wand realisiert und erhöhen den Wellnessfaktor. Als verbindendes Element sind neben dem Bad auch die weiteren drei Zimmer vom zentral liegenden Flur aus zu begehen. Dank vieler Fenster wirken alle Räume hell und freundlich.

Schnörkellos, elegant mit klaren Linien – im Stadthaus 3 werden Sie sich wohlfühlen. 




Jedes AVA-Haus wird individuell nach Ihren Wünschen geplant und gestaltet – bitte vereinbaren Sie hierzu einen Gesprächstermin. Änderungen vorbehalten.

Diese Website verwendet Cookies. Wenn Sie diese Seite weiter benutzen gehen wir von Ihrem Einverständnis aus. Bitte lesen Sie unsere Datenschutzerklärung für Details.

OK